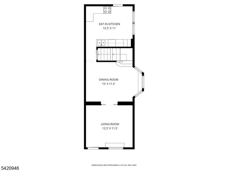
Welcome home to this spacious, solid brick end-unit townhouse that is freshly painted inside and offers 3 bedrooms and 1 full bath and also includes a 1 year free HOME WARRANTY! The main level features a kitchen, formal dining room, and living room accented by beautiful pocket doors and classic mouldings. Additional highlights include thermal windows, a NEW refrigerator, ceiling fans, carpeting and hardwood flooring in upstairs bedrooms and hallway, two outdoor covered porches in the front and back, and a detached 2 CAR GARAGE W/OFF STREET PARKING for up to 4 vehicles! The partially finished walls in full basement provide excellent potential for additional living space and comes equipped with laundry hook up. As a rare end unit, this home also boasts a private side yard which is perfect for pets, gardening, or outdoor entertaining. Even better, there are NO Association Fees, giving you the freedom to make it your own. The included 1 YEAR HOME WARRANTY to buyer provides coverage for plumbing, electrical, appliances, and heating (see policy for details). All mechanical systems are in good working order; however, the home is being sold as-is. An excellent opportunity for first-time buyers or investors looking to add value with minor updates. Conveniently located minutes from commuter routes, shopping, attractions, and downtown Easton.
79 Schultz Avenue, Phillipsburg Town NJ 08865-2445
Property City
Phillipsburg Town
Property Price
$224,900
Rooms
6
Bedrooms
3
Bathrooms
1.00
Year Built
1920
Tax Annual Amount
$4067
TaxYear (*text)
2025
BathroomsFull
1
Roof (*text)
Flat
Floors No
Carpeting, Laminate, Wood
Lot Size Area
0.05
MLS Status
Active
MLS #
4017809
Yearly Tax Rate
4.675
Year Built (*numeric)
1920
Basement
Yes
Roofing (*text)
Flat
Basement (*text)
Yes
Cooling (*text)
None
FireplacesTotal (*text)
0
GarageSpaces
2
Heating
1 Unit
Lot Size Dimensions
.046 ACRE
Data import from
GSMLS